Everley at Sunbury

1 Tanninbrae Drive Sunbury

Open 7 days 11am – 5pm

Enquire today Download Brochure

Site Map

This release consists of 6 single storey properties – all inclusive of 3 bedrooms and single car accommodation.

Lot 6206

11.8sqm

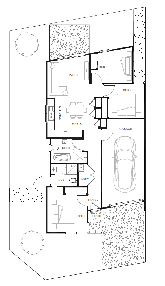
The Tilbury

Set within Everley Sunbury, this thoughtfully designed 3-bedroom home will be finished with premium inclusions and your own private yard.

Enquire Now Download Brochure Download Floorplan

Lot 6207

11.8sqm

The Tilbury

This home offers everything you need — from engineered stone benchtops to blinds, landscaping and quality appliances.

Enquire Now Download Brochure Download Floorplan

Lot 6210

12.1sqm

The Tilbury Cnr

This 3-bedroom home brings effortless turnkey living, complete with Fisher & Paykel appliances & engineered stone to the kitchen

Enquire Now Download Brochure Download Floorplan

At the heart is you.

Everley has pride of place in Sunbury, the closest of the new estates to the historic town centre. Positioned on one side by the old town, and the other side close to the new retail precinct, there’s no better place to be. As Sunbury expands to meet the demands of a growing population, Everley will become even more central in the near future.

Everley is well connected to Melbourne and regional Victoria, with Sunbury Station a 5-minute drive and Melbourne Airport just 20 minutes away.

Good design is not a luxury.

This is the ethos behind every townhouse we design and build. Each home design is functional, comfortable and without compromise. We ensure your home comes complete with flexible spaces, loads of natural light and plenty of storage space so you can enjoy your home now and into the future.

Our design promise extends to ensure you receive the highest quality fixtures and fittings from our architectural facades to our timeless interiors. Over the journey we have won over a dozen industry awards for our designs, our build quality, affordability and our people. We invite you to take a look for yourself. You won’t be disappointed

Get Started Today
young,couple,sharing,domestic,chores,and,making,bed,at,home

Lots to choose from

Don’t delay, enquire about any of the available lots

Looking for display homes to inspire your dream build? Explore our range of display homes at Sienna Homes, designed with modern family living in mind. Our displays showcase the high-quality craftsmanship and innovative designs that make us an award-winning builder.

"*" indicates required fields

This field is for validation purposes and should be left unchanged.

Your home comes complete with quality inclusions

At Sienna Home, we believe that your dream home deserves the finest touches in every detail. That's why we're proud to partner with leading brands such as Polytec, Daikin, Electrolux, and Franke, ensuring that every aspect of your home reflects quality and sophistication.

Why Choose

Sienna Homes?

vic

VICTORIAN OWNED & OPERATED

We are a 100% local company with all of our staff based right here in Victoria.

pen

PASSIONATE ABOUT GOOD DESIGN

We take great pride in our designs and ensure each home is crafted for modern, family living.

award

AWARD WINNING BUILDER

Over the years, we've received a number of accolades in recognition of our success.

leaf

SUSTAINABILITY MATTERS

We care for our environment and are actively committed to minimising our impact.

image (5)

Your partner for home loans.

We do everything possible to get you the most suitable loan. And we make sure the whole process is easy and hassle-free. Best of all, our services won’t cost you a cent.

Our Loan Repayment Calculator